Get new listings emailed daily! JOIN SIGN IN
Rebecca Johnson
REALTOR®, C2EX, AHWD, GRI
Cell: (865) 446-0380
Facebook Icon Zillow Icon VCard Icon 
Refine Search

5816 Caswell Drive, Greenback, TN 37742

$899,900
  • 5816 Caswell Drive, Greenback, TN 37742 Main Photo

3 Total Photos [Click to View All]

Active
BEDS3 BATHS3 full 1 partial SQUARE FEET3,156 MLS#1327232
STATUSActive PROPERTY TYPEResidential - Single Family SUBDIVISIONFranklin Manor NEIGHBORHOODBlount County - 28

Property Description

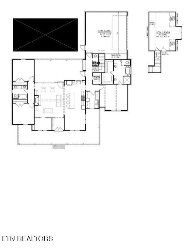
Seller has added 476 SF to the original plan and thus the increase in price. This thoughtfully designed 3,156 sq ft new construction home is currently underway and offers the perfect blend of modern comfort, efficient layout, and current style. With construction in progress, buyers still have the opportunity to personalize select finishes and make this home truly their own. Spacious main level with an open concept living, dining, and kitchen area ideal for everyday living and entertaining. Split bedroom layout providing privacy for the primary suite. Generously sized primary bedroom with ensuite bath and walk in closet. Two additional main level bedrooms with convenient access to a full bath. Dedicated laundry/mudroom connecting to the garage. An added feature is the 15x14 heated/cooled sunroom on the back of the house. Generously sized covered front porch and rear patio for outdoor enjoyment. Spacious oversized 702 sq ft 2 car garage. A huge highlight of this home above the 2 car garage is 614 sq ft finished bonus room w/full bathroom perfect for: a fourth bedroom, home office, media room, playroom, hobby or fitness space. As construction progresses, buyers may have the opportunity to choose finishes such as flooring, cabinetry, countertops, paint colors, and lighting, depending on build stage. With a total of 3,156 sq ft of usable space, this home offers the square footage and flexibility all wrapped in a brand new, energy efficient build. It's an ideal fit for families, work from home lifestyles, or anyone wanting a fresh start in a thoughtfully crafted home.

5816 Caswell Drive | MLS# 1327232

This single family home located at 5816 Caswell Drive, Greenback, TN 37742 is currently listed for sale with an asking price of $899,900. This property has 3 bedrooms and 3 full and 1 partial baths with 3156 sq. ft. Caswell Drive is located in the Franklin Manor subdivision. Search Franklin Manor real estate on www.soldbyrebeccaj.com today.

Property Features

Property Type: Residential - Single Family
Cooling: Central Cooling, Ceiling Fan(s)
Fireplaces: 1
Fuel Type: Electric
Garage: 2 car attached
Heating: Central, Heat Pump, Electric
Home Style: Craftsman
Lot Size: 0.75 Acres

Amenities

Walk-In Closet(s)
Cathedral Ceiling(s)
Kitchen Island
Pantry
Eat-in Kitchen

Feature Descriptions

Appliances: Dishwasher, Microwave, Range, Refrigerator, Self Cleaning Oven
Days on Site: 41
Exterior: Brick
Fireplace: Electric, Other
Flooring: Hardwood, Tile
HOA Y/N: Yes
Lot: Wooded, Level
Parcel #: 099B A 076.00
Parking: Garage Faces Side, Off-Street Parking, Garage Door Opener, Attached, Main Level
Security Features: Smoke Detector
Sewer: Septic Tank
Special View Info: Country Setting
SQFT Total: 3156
View: Country Setting
Water: Public
Wooded: Yes

Local Schools

High School: William Blount
Middle School: William Blount
Elementary School: Lanier

Listed By / Shown By

Listed By

Agency Name: Realty Executives Associates

Shown By

Agent Name: Rebecca Johnson
Agent Phone: Cell: (865) 446-0380
Agency Title: Crye-Leike Real Estate Services

IDX logo

Source: East Tennessee REALTORS

Estimate Your Payment

Estimated Payment

$ 2,265.26 per month $2,002.79 Principal & Interest $0.00 Property Tax (data not provided by mls) $262.47 Homeowner's Insurance

Change Payment Information

%
years/fixed
yearly
yearly (est.)
(Payments are an estimate and may vary by lender)
Disclaimer: All information deemed reliable but not guaranteed. All properties are subject to prior sale, change or withdrawal. Neither listing broker(s) or information provider(s) shall be responsible for any typographical errors, misinformation, misprints and shall be held totally harmless. Listing(s) information is provided for consumers personal, non-commercial use and may not be used for any purpose other than to identify prospective properties consumers may be interested in purchasing. Information on this site was last updated 03/04/2026. The listing information on this page last changed on 03/04/2026. The data relating to real estate for sale on this website comes in part from the Internet Data Exchange program of Delta Media Group MLS (last updated Wed 03/04/2026 12:14:35 AM EST) or GAMLS (last updated Tue 03/03/2026 11:14:48 PM EST) or CARMLS (last updated Wed 03/04/2026 12:05:19 AM EST) or RCAR MLS (last updated Wed 03/04/2026 12:07:10 AM EST) or MAAR MLS (last updated Wed 03/04/2026 12:12:35 AM EST) or FMLS (last updated Tue 03/03/2026 11:43:01 PM EST) or East Tennessee REALTORS (last updated Wed 03/04/2026 12:04:26 AM EST) or RealTracs (last updated Wed 03/04/2026 12:05:29 AM EST) or Arkansas CARMLS (last updated Tue 03/03/2026 11:27:07 PM EST) or GSMAR MLS (last updated Tue 03/03/2026 9:13:11 PM EST) or Baldwin County MLS (last updated Wed 03/04/2026 12:11:10 AM EST) or Tennesse Virginia MLS (last updated Tue 03/03/2026 11:53:20 PM EST) or Emerald Coast MLS (last updated Wed 03/04/2026 12:05:24 AM EST) or Northeast Oklahoma Real Estate (last updated Tue 03/03/2026 11:23:56 PM EST) or Southern Kentucky MLS (last updated Tue 03/03/2026 9:54:58 PM EST) or SOMO MLS (last updated Tue 03/03/2026 4:07:48 PM EST) or North Georgia MLS (last updated Tue 03/03/2026 10:47:19 PM EST) or Golden Triangle MLS (last updated Wed 03/04/2026 12:06:08 AM EST) or MLS United (last updated Wed 03/04/2026 12:06:10 AM EST) or Lakeway MLS (last updated Wed 03/04/2026 12:12:19 AM EST) or Batesville MLS (last updated Tue 03/03/2026 11:59:59 PM EST) or Central Georgia MLS (last updated Wed 03/04/2026 12:04:10 AM EST) or North Central Mississippi MLS (last updated Tue 03/03/2026 9:32:43 PM EST) or Hot Springs MLS (last updated Tue 03/03/2026 8:27:58 PM EST) or Huntsville/Valley MLS (last updated Tue 03/03/2026 10:57:57 PM EST) or Shoals MLS (last updated Tue 03/03/2026 8:31:41 PM EST) or Tupelo MLS (last updated Tue 03/03/2026 11:42:54 PM EST) or NEAKBOR MLS (last updated Tue 03/03/2026 11:10:20 PM EST) or EAKBOR MLS (last updated Wed 03/04/2026 12:13:04 AM EST) or CWTAR MLS (last updated Wed 03/04/2026 12:10:47 AM EST) or NWAKBOR MLS (last updated Wed 03/04/2026 12:09:14 AM EST) or Upper Cumberland MLS (last updated Tue 03/03/2026 11:59:33 PM EST) or Hattiesburg MLS (last updated Tue 03/03/2026 10:59:07 PM EST) or Puerto Rico MLS (last updated Wed 03/04/2026 12:05:09 AM EST). Real estate listings held by brokerage firms other than Crye-Leike Real Estate Services may be marked with the Internet Data Exchange logo and detailed information about those properties will include the name of the listing broker(s) when required by the MLS. All rights reserved.
Privacy Policy / DMCA Notice / ADA Accessibility

Login to My Homefinder

Pixel