Get new listings emailed daily! JOIN SIGN IN
Rebecca Johnson
REALTOR®, C2EX, AHWD, GRI
Cell: (865) 446-0380
Facebook Icon Zillow Icon VCard Icon 

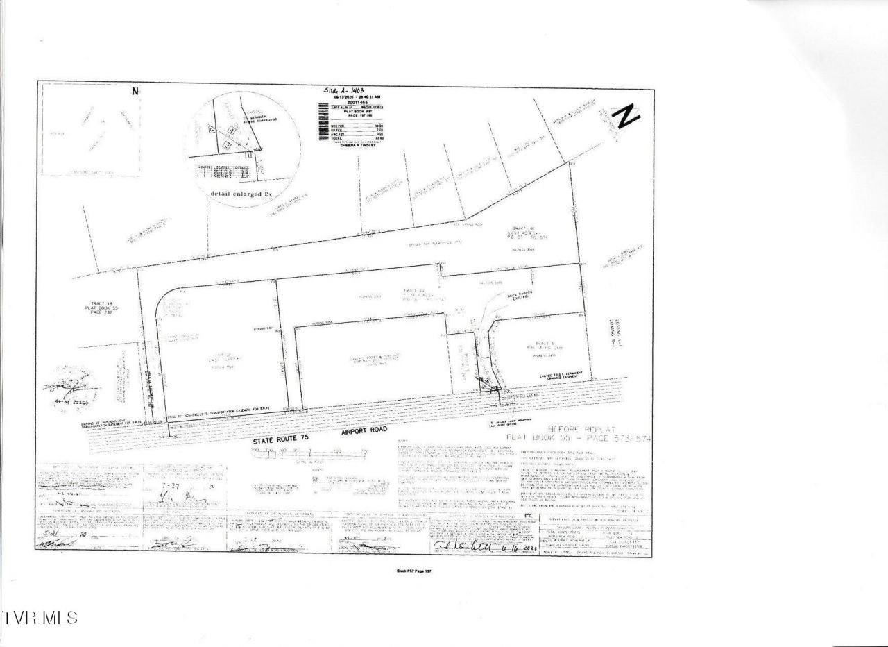
3460 Tn-75, Kingsport, TN 37663

$1,000,000
  • 3460 Tn-75, Kingsport, TN 37663 Main Photo

2 Total Photos [Click to View All]

Active
SQUARE FEET5,000 MLS#9990756
STATUSActive PROPERTY TYPECommercial - Industrial SUBDIVISIONNot In Subdivision NEIGHBORHOOD411 - AirportFall CrkCooks Valley

Property Description

Prime Commercial Opportunity on Highway 75 - Kingsport, TNPosition your business or investment for maximum exposure and long-term performance with this highly visible two-parcel commercial offering at 3450 & 3460 Highway 75 in Sullivan County. Featuring a 10,000 SF building on 7.69 acres and located just 2.5 miles from Tri-Cities Airport and directly on four-lane Highway 75, the property benefits from an average traffic count of approximately 11,000 vehicles per day, delivering outstanding visibility and accessibility.Zoned B-3/R-4 General Business, this flexible site features 446 feet of highway frontage, excellent tractor-trailer access, a wide entry, night lighting, and full public utilities. The property is currently income producing, utilized for RV storage, business rental space, and three residential apartments, generating $6,500 in monthly income with a 7.1% cap rate?making it attractive to both owner-users and investors.An additional nearby parcel is also available, well-suited for equipment storage or display, model homes, or a lay-down yard, further enhancing expansion or development potential.Centrally located within 15 minutes of Bristol, Kingsport, and Johnson City, the site offers excellent regional connectivity?just 4 miles to Interstate 26 and 10 miles to Interstate 81. The property's proximity to Boone Lake and the Boone Lake Recreation Area adds appeal for businesses serving both commercial and recreational markets.This is a rare opportunity to secure a versatile, high-exposure commercial property strategically positioned to serve Sullivan and Washington Counties, combining strong current income with exceptional future potential.

3460 Tn-75 | MLS# 9990756

This commercial property located at 3460 Tn-75, Kingsport, TN 37663 is currently listed for sale with an asking price of $1,000,000. Search 411 - Airportfall Crkcooks Valley real estate on www.soldbyrebeccaj.com today.

Property Features

Property Type: Commercial - Industrial
Cooling: Central Air
Heating: Central
Lot Size: 7.69 Acres
Roof Type: Metal
Year Built: 2013

Feature Descriptions

Days on Site: 30
Equipment (Other): Exterior Lights, Garage Bay(s), Lighting-Fluorescent, Outside Storage, Part Fenced
Exterior: Block, Stucco
Lot Dimensions: 1105' x 457' IRR
Parcel Id: 107 026.00
Road Frontage: Highway
Sewer: Public Sewer
Utilities: Cable Connected, Electricity Connected, Sewer Connected, Water Connected
Water: Public
Zoning: B3

Listed By / Shown By

Listed By

Agency Name: TCI Group - Jerry Petzoldt Agency, LLC
Agency Phone: 423-230-0255

Shown By

Agent Name: Rebecca Johnson
Agent Phone: Cell: (865) 446-0380
Agency Title: Crye-Leike Real Estate Services

IDX logo

Source: Tennesse Virginia MLS
Disclaimer: All information deemed reliable but not guaranteed. All properties are subject to prior sale, change or withdrawal. Neither listing broker(s) or information provider(s) shall be responsible for any typographical errors, misinformation, misprints and shall be held totally harmless. Listing(s) information is provided for consumers personal, non-commercial use and may not be used for any purpose other than to identify prospective properties consumers may be interested in purchasing. Information on this site was last updated 03/04/2026. The listing information on this page last changed on 03/04/2026. The data relating to real estate for sale on this website comes in part from the Internet Data Exchange program of Delta Media Group MLS (last updated Wed 03/04/2026 9:19:44 AM EST) or East Tennessee REALTORS (last updated Wed 03/04/2026 9:15:25 AM EST) or GSMAR MLS (last updated Wed 03/04/2026 9:13:02 AM EST) or Tennesse Virginia MLS (last updated Wed 03/04/2026 7:55:07 AM EST) or Lakeway MLS (last updated Wed 03/04/2026 9:12:56 AM EST). Real estate listings held by brokerage firms other than Crye-Leike Real Estate Services may be marked with the Internet Data Exchange logo and detailed information about those properties will include the name of the listing broker(s) when required by the MLS. All rights reserved.
Privacy Policy / DMCA Notice / ADA Accessibility

Login to My Homefinder

Pixel